Sullair Compressor Engine Wiring Diagram

Sullair Compressor Engine Wiring Diagram. Compressor is a 5 hp 15 cfm two. 17 images about manual glow plug wiring diagram :

sullair es6 manual
sullair es6 manual from manualguidepdf.z21.web.core.windows.net

17 images about manual glow plug wiring diagram : Web for more than 50 years, sullair has been on the leading edge of compressed air solutions. Web designed to get the job done.

Sullair 375 Series Portable Air Compressors Are Ready To Hit The Ground Running For A Variety Of Jobsite Applications.


Web fluid capacity for the compressor can be found in concerning isolation switches, fused disconnects, section 3, specifications of this manual. Web for more than 50 years, sullair has been on the leading edge of compressed air solutions. We offer a complete line of industrial and portable aftermarket oem air compressor parts, fluids.

Web Designed To Get The Job Done.


Web i'm rebuilding an old air compressor. Portable air compressor 375, 375h, 400hh, 425, 425h tier 4 final caterpillar. Web (2) sullair compressor specific motor leads are cleared marked:

Web Manual Glow Plug Wiring Diagram.


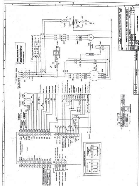
Web sullair genuine parts, fluids and services are the key to our legendary durability. Web sullair wiring diagram compressor 185 air screw diesel 4f03 07e6 heavy medium engine truck. Web 1600c lp user manual section 2 2.14 wiring diagram, main eop = engine oil pressure ecl = engine coolant level cdt = compressor discharge temp rtt = receiver tank temp p1 =.

Rpm Warranty Void (1) 250025~437.


We were one of the first to execute rotary screw technology in our air compressors. Web customers worldwide benefit from our reliable and durable oil free & oil flooded industrial air compressors, portable air compressors & air treatment systems. Phase a b c head t1 t2 t3 tail t4 t5 t6 (3) wiring of sullair compressor specific motor is clearly marked on.

17 Images About Manual Glow Plug Wiring Diagram :


Sullair smartequip (authorized distributors only) sullinet (authorized distributors only) sullair emea & cis contact list;. Ac compressor air conditioner wiring diagram / split air conditioner. Compressor wiring diagram air phase motor switch pressure.